Holland Road

No Review
District 10 - Bukit Timah / Holland / Tanglin
Size 5700 Sq Ft

Overview

Property ID: SD45

Information

Description

A Brand New Holland Road Semi-Detached House in District 10

This modern landed home is nestled in the vibrant Holland Village and Chip Bee Gardens neighbourhood, conveniently located within a short stroll of both the train station and a lively strip of cafes and shops.

The house exudes curb appeal, with a spacious front porch for your cars. Its exterior boasts a blend of contemporary architecture and modern touches, complemented by large windows that invite natural light into the interior.

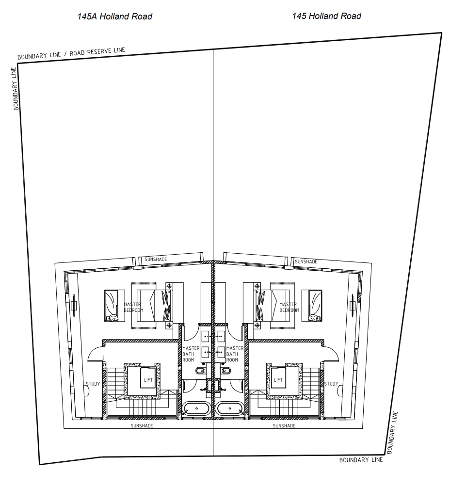
As you take the lift to the second floor, an open floor plan greets you, creating a seamless flow between the living spaces. The living and dining rooms are bathed in sunlight streaming through the windows, offering a cozy spot to relax or entertain guests.

Adjacent to the dining area is a well-appointed kitchen, complete with modern appliances, sleek countertops, and ample storage.

This Holland Road landed property has 5 bedrooms with generous layouts and are havens of comfort, each offering a peaceful retreat. Large windows provide views of the neighbourhood streets, and the soft natural light creates a warm ambience.

The prime location at Holland Road allows for easy access to the train station, making commuting a breeze, while the nearby cafes and shops offer a myriad of dining and shopping options just steps away. This brand new landed property isn’t just a home; it’s a gateway to a vibrant lifestyle, where the convenience of city living meets the comfort of a charming neighbourhood retreat.

Land Area: 2,593 sqft
Built up: 5,700 sqft
Tenure: Freehold
District: 10
Est T.O.P: Q4 2023

Features:
■ Parks 4 cars
■ 5 Levels
■ 5 + 1 rooms
■ Home Lift
■ Generous room sizes

Schools and Amenities:
■ Fairfield Methodist School (Primary)
■ Henry Park Primary School
■ Nanyang Primary School
■ New Town Primary School
■ 3 minutes’ walk to Holland Village MRT Station
■ 3 minutes’ walk to Holland Village / Chip Bee Gardens
■ 8 minutes’ drive to Orchard Shopping Belt

Disclaimer:
1) All land and built up areas are based on approximate measurements and are subject to final survey and shall not form part of any offer or contract or constitute any warranty by the salesperson and shall not be regarded as statements or representations of fact.
2) Images & floor plans shown are for illustration purposes and may not represent the actual property.

Brand New Landed Property Listings | Resale Landed Property Listings

Details

  • Price
  • Property ID
    Property ID: SD45
  • Area Size
    Size 5700 Sq Ft
  • Land Area Size
    Land Area 2593 Sq Ft
  • Rooms
    Rooms
  • Bedrooms
    Bedrooms 5
  • Year Built
    Year Built 2023

Description

A Brand New Holland Road Semi-Detached House in District 10

This modern landed home is nestled in the vibrant Holland Village and Chip Bee Gardens neighbourhood, conveniently located within a short stroll of both the train station and a lively strip of cafes and shops.

The house exudes curb appeal, with a spacious front porch for your cars. Its exterior boasts a blend of contemporary architecture and modern touches, complemented by large windows that invite natural light into the interior.

As you take the lift to the second floor, an open floor plan greets you, creating a seamless flow between the living spaces. The living and dining rooms are bathed in sunlight streaming through the windows, offering a cozy spot to relax or entertain guests.

Adjacent to the dining area is a well-appointed kitchen, complete with modern appliances, sleek countertops, and ample storage.

This Holland Road landed property has 5 bedrooms with generous layouts and are havens of comfort, each offering a peaceful retreat. Large windows provide views of the neighbourhood streets, and the soft natural light creates a warm ambience.

The prime location at Holland Road allows for easy access to the train station, making commuting a breeze, while the nearby cafes and shops offer a myriad of dining and shopping options just steps away. This brand new landed property isn’t just a home; it’s a gateway to a vibrant lifestyle, where the convenience of city living meets the comfort of a charming neighbourhood retreat.

Land Area: 2,593 sqft
Built up: 5,700 sqft
Tenure: Freehold
District: 10
Est T.O.P: Q4 2023

Features:
■ Parks 4 cars
■ 5 Levels
■ 5 + 1 rooms
■ Home Lift
■ Generous room sizes

Schools and Amenities:
■ Fairfield Methodist School (Primary)
■ Henry Park Primary School
■ Nanyang Primary School
■ New Town Primary School
■ 3 minutes’ walk to Holland Village MRT Station
■ 3 minutes’ walk to Holland Village / Chip Bee Gardens
■ 8 minutes’ drive to Orchard Shopping Belt

Disclaimer:
1) All land and built up areas are based on approximate measurements and are subject to final survey and shall not form part of any offer or contract or constitute any warranty by the salesperson and shall not be regarded as statements or representations of fact.
2) Images & floor plans shown are for illustration purposes and may not represent the actual property.

Brand New Landed Property Listings | Resale Landed Property Listings

Details

  • Price
  • Property ID
    Property ID: SD45
  • Area Size
    Size 5700 Sq Ft
  • Land Area Size
    Land Area 2593 Sq Ft
  • Rooms
    Rooms
  • Bedrooms
    Bedrooms 5
  • Year Built
    Year Built 2023
  • City Singapore
  • Country Singapore

Floor Plans

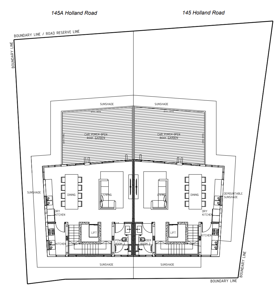
Floor Plans - First Storey
Floor Plans - First Storey
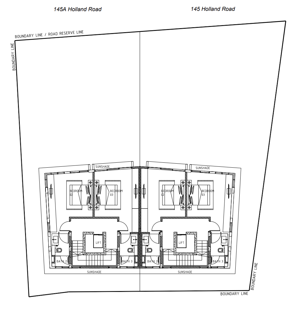
Floor Plans - Second Storey
Floor Plans - Second Storey
Floor Plans - Mezzanine
Floor Plans - Mezzanine
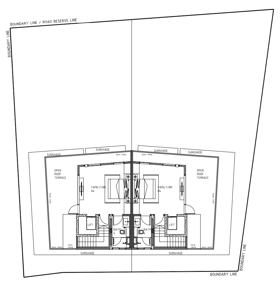
Floor Plans - Third Storey
Floor Plans - Third Storey
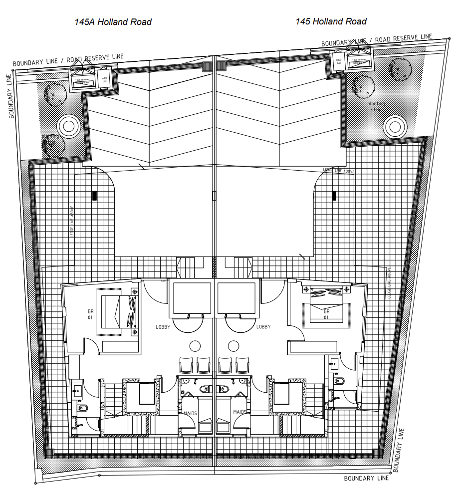
Floor Plans - Attic
Floor Plans - Attic

Mortgage Title

  • Principal Amount
  • Years
  • Monthly Payment
  • Balance Payable With Interest
  • Total Down Payment

Reviews

0
out of 5

5.0 Blended Score

No Review

Similar Properties

error: